Modern und naturnah bei Leipzig
Wohnen in Colditz
In Colditz entstehen acht moderne Maisonette-Eigentumswohnungen mit Garten oder Dachterrasse. Nachhaltig saniert, großzügig geschnitten und gut an Leipzig angebunden. Ideal für Familien und Homeoffice.
Projektüberblick
Die wichtigsten Eigenschaften und Vorteile der Wohnprojekts in Colditz.
Ruhige Lage bei Leipzig
Großzügige Wohnungen
Acht Maisonette-Wohnungen mit je 107–147 m². Vier Zimmer, zwei Bäder, separate Küche und Kellerabteil.
Dachterrasse oder Garten
Vier Wohnungen mit Garten ab ca. 70 m² und vier Wohnungen mit Dachterrassen ab ca. 20 m².
Energieeffizient saniert
Saniertes Haus mit neuer Dämmung, modernen Fenstern und einem Effizienzstandard von EE 70–85.
Für Familie und Homeoffice
Nachhaltige Haustechnik
Wohnungen
Helle, großzügige Räume mit durchdachten Grundrissen – jede Wohnung mit vier Zimmern, zwei Bädern und privatem Außenbereich.

Wohn- und Esszimmer
Weitläufiger, offener Wohnbereich mit viel Tageslicht und fließendem Übergang nach draußen.

Dachterrasse oder Garten
Private Außenfläche mit Platz zum Entspannen, Essen oder Verweilen im Grünen.

Schlafzimmer
Ruhiger Rückzugsort mit viel Tageslicht und Blick ins Grüne.

Zwei Bäder
Zwei vollwertige Bäder – eines mit Dusche, eines mit Badewanne.

Zwei flexible Zimmer
Vielseitig nutzbare Räume – ideal als Homeoffice, Kinder- oder Gästezimmer.

Küche
Separate Küche mit viel Arbeitsfläche, Stauraum und angenehmem Tageslicht.
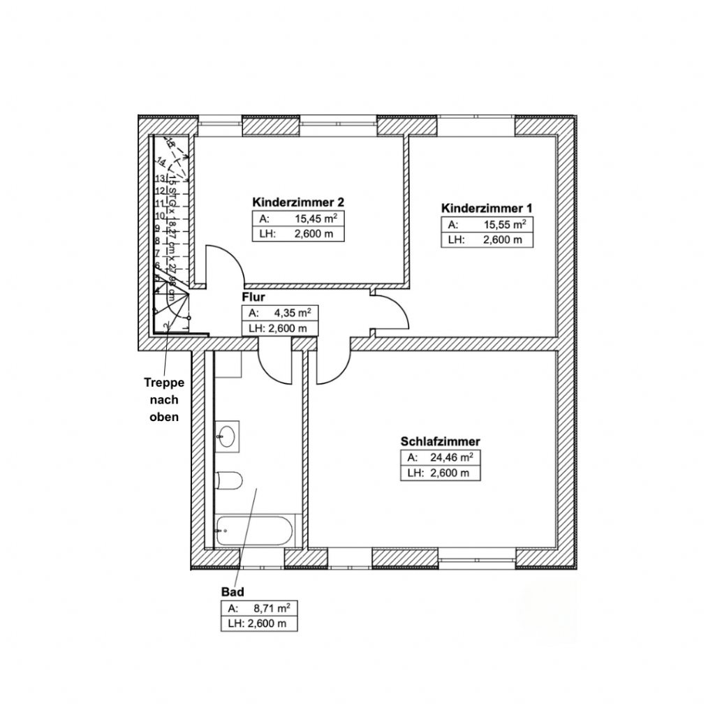
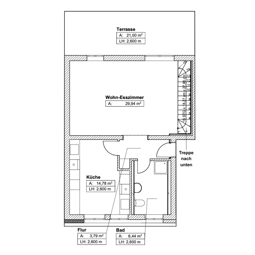
Grundrisse
Vier Wohnungstypen mit je zwei Ebenen, privatem Außenbereich und unterschiedlich großen Wohnflächen. Jeden Wohnungstyp gibt es zwei Mal.
1. Garten-Wohnung M
Wohnfläche 107-109 m² / Gartenfläche ~ 70 m²
Untere Ebene
Obere Ebene
2. Garten-Wohnung L
Wohnfläche 137-140 m² / Gartenfläche ~ 85 m²
Untere Ebene
Obere Ebene
3. Dachterrassen-Wohnung M
Wohnfläche 112-114 m² / Dachterrasse ~ 20 m²
Untere Ebene
Obere Ebene
4. Dachterrassen-Wohnung L
Wohnfläche 143-147 m² / Dachterrasse ~ 24 m²
Untere Ebene
Obere Ebene
Gemeinschaftsbereiche
Praktisch geplante Gemeinschaftsflächen im Außen- und Innenbereich.

Außenbereich
Die Außenanlage verfügt über grüne Gemeinschaftsflächen, mind. 12 Autoparkplätze sowie E-Ladestationen.

Keller
Zusätzlich zu privaten Kellerabteilen stehen gemeinschaftliche Abstellräume für Fahrräder und Kinderwagen zur Verfügung.
Lage
Grüne Umgebung mit Einkaufsmöglichkeiten, Kinderspielplatz und Kindergarten in unmittelbarer Nähe. Bis Leipzig Zentrum sind es 45 Minuten mit dem Auto, 70 Minuten mit öffentlichem Nahverkehr. Wohnadresse: Parkstr. 1/2 in 04680 Grimma.
Eckdaten
Die wichtigsten Daten zum Gebäude und den Wohnungen.
| Grundstückfläche | 2.082 m² |
| Anzahl Etagen im Mehrfamilienhaus | 4 |
| Anzahl Wohnungen | 8 |
| Ebenen pro Wohnung | 2 (Maisonette) |
| Fläche pro Wohnung | 107–147 m² |
| Anzahl Zimmer pro Wohnung | 4 Zimmer, 2 Bäder, 1 Küche |
| Gartenfläche bei unteren Wohnungen | 70–85 m² |
| Dachterrassenfläche bei oberen Wohnungen | 19–24 m² |
| Kellerfläche pro Wohnung | 10–23 m² |
| Parkplätze pro Wohnung | 1–2 |
Kontakt
Interesse an einer der Eigentumswohnungen in Colditz? Schicken Sie uns gerne eine Nachricht, wir melden uns zeitnah bei Ihnen.
